كوڤنتري كازا

كوڤنتري كازا

ابتداءً من: 517,010 درهم إماراتي

كوڤنتري كازا

تسجيل اهتمامك

تسجيل اهتمامك

عن المشروع

كوڤنتري كازا يقدم مشروعًا سكنيًا عصريًا يجمع بين الهندسة المعمارية المعاصرة والراحة الراقية. تم تصميم المشروع لتوفير شقق واسعة بتصاميم تركز على الضوء الطبيعي، والوظائف العملية، والتشطيبات عالية الجودة. كل تفصيل فيه يعكس توازنًا مدروسًا بين الأناقة والعملية، ليخلق بيئة سكنية أنيقة ومرحبة في الوقت نفسه. يوفر المشروع لسكانه أسلوب حياة متكامل من خلال مجموعة من المرافق، بما في ذلك مسبح، وصالة ألعاب رياضية مجهزة بالكامل، وحدائق منسقة، ومناطق لعب للأطفال، لضمان تلبية احتياجات الترفيه، والصحة، والعائلة بشكل كامل. تم تصميم المساحات المشتركة لتعزيز التفاعل الاجتماعي، مع توفير أماكن للاسترخاء والراحة، مما يجعل المشروع مناسبًا لكل من الحياة الاجتماعية النابضة والحياة الخاصة الهادئة. كما يركز كوڤنتري كازا على القيمة طويلة الأمد من خلال دمج تقنيات بناء حديثة وحلول مستدامة. بفضل مزيجه من الجاذبية الجمالية، والتصميم العملي، والمرافق الموجهة لنمط الحياة، يقدم المشروع تجربة سكنية تضع معيارًا جديدًا للحياة الحضرية المعاصرة.

التفاصيل

خطط الطوابق

استوديو
غرفة نوم واحدة
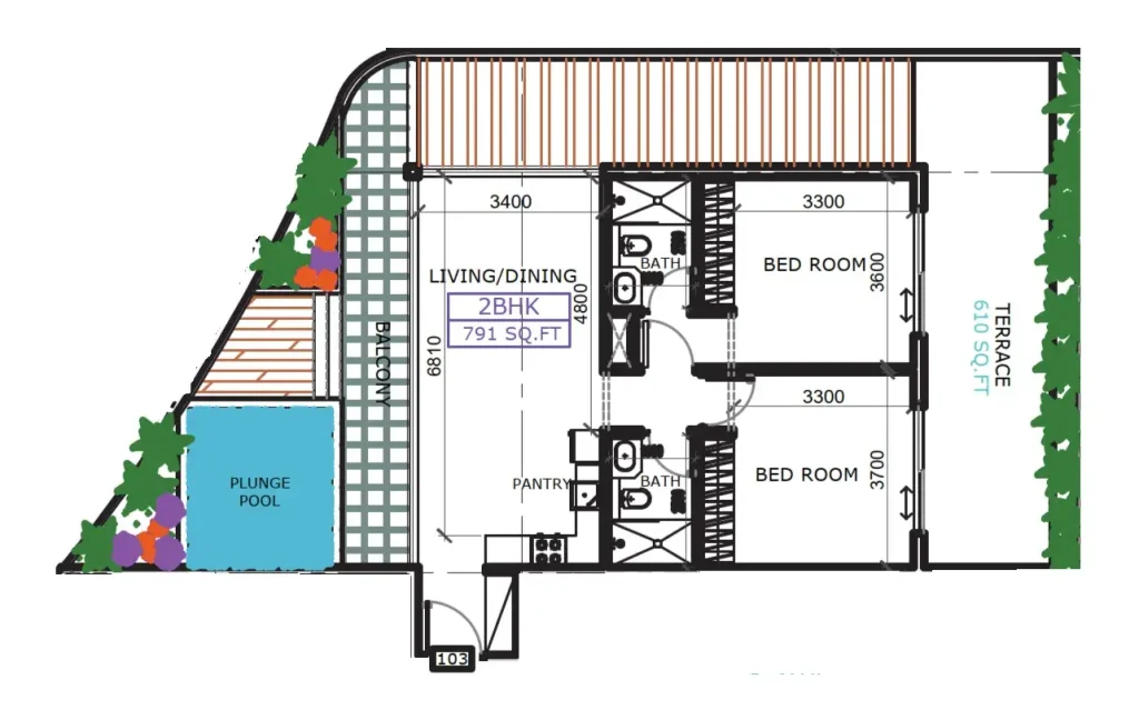
غرفتين نوم

خطة الدفع :

تحت الإنشاء: 39%

عند التسليم: 20٪

السعر الابتدائي: 517,010 درهم إماراتي

موعد التسليم: سبتمبر 2027

للاستفسار عن كوڤنتري كازا

تسجيل اهتمامك
arالعربية