Wynwood Horizon

Wynwood Horizon

Starting from AED 1,810,758

Wynwood Horizon

Register Your Interest

Register Your Interest

About the Project

Wynwood Horizon by Imtiaz is a landmark residential development rising within the prestigious Meydan City community, offering an exceptional lifestyle defined by elegance and comfort. The project presents a refined collection of 1, 2, and 3-bedroom apartments as well as exclusive 3-bedroom penthouses, each crafted to maximize light, space, and stunning views. From sunrise reflections over the lagoon to twilight glows across the skyline, every home provides a picturesque backdrop of the Dubai Lagoon, Downtown skyline, and wildlife sanctuary. Life at Wynwood Horizon is enriched with world-class amenities that bring resort-style living into everyday moments. Residents can enjoy a breathtaking infinity pool with sunken seating, a clubhouse designed for leisure and connection, and a fully equipped gym for health and wellness. Families benefit from children’s play zones, a kids’ pool, BBQ areas, and even an outdoor cinema, ensuring that every member of the household finds joy and relaxation. Wynwood Horizon offers unmatched connectivity to Dubai’s most dynamic destinations. Surrounded by crystal lagoons, sandy shores, lush promenades, and shaded walkways, it creates a perfect harmony between urban vibrancy and natural serenity. Every detail, from bespoke interiors to smart home features and premium finishes, has been carefully selected to elevate daily living.

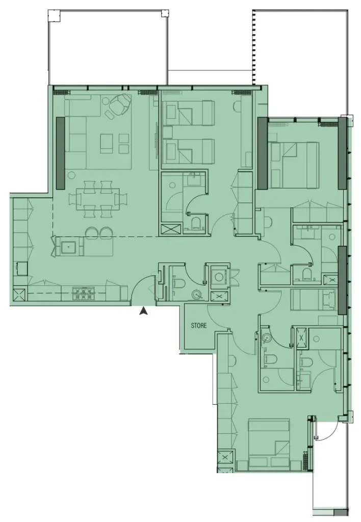
Floor Plans

1 BR
2 BR
3 BR

Payment Plan

Under Construction: 40%

On Handover: 40%

Starting Price: 1,810,758

Handover: 06-2028

Enquire about Wynwood Horizon

Register Your Interest
en_USEnglish